INTERDISCIPLINARY DESIGN
Design
Interior Design
About
Journal
Press
Shop
Contact
0
INTERDISCIPLINARY DESIGN
Design
Interior Design
About
Journal
Press
Shop
Contact
0
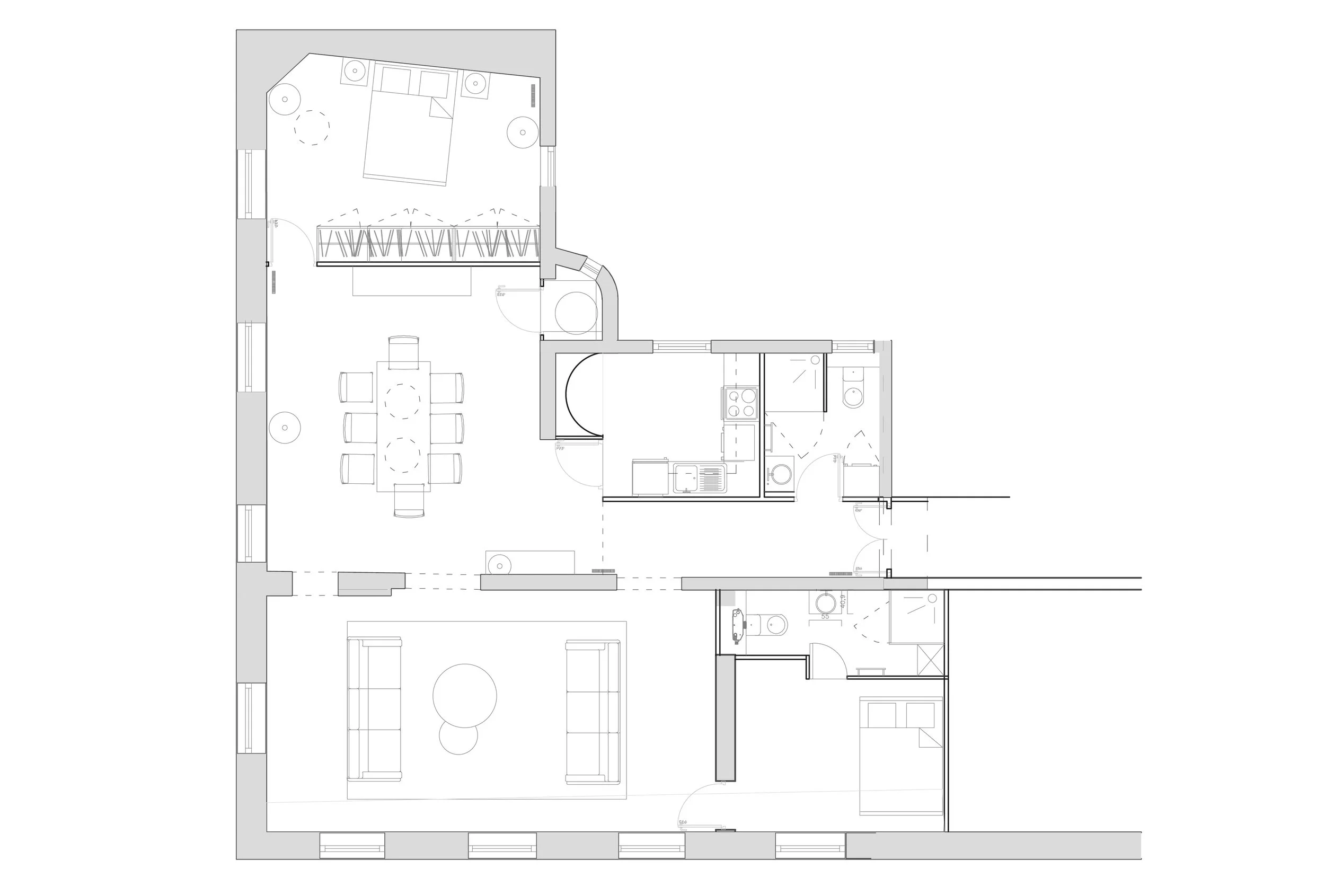
Babylone - Paris 7
Interior Design
1
2
3
4
5
6
7
Previous
Next